Bau | Hochbau

Mauern Tag 2

13. April 2011

Jetzt kann man schon die einzelnen Zimmer betreten (dafür wird es langsam schwerer zu fotografieren)…

Flur
Wohnzimmer Südansicht

Süd-Ost-Ecke

Wohnzimmer aus dem HWR

Aus dem Wohnzimmer in den Flur

Luft- (oder vielmehr Leiter-) Aufnahme aus der Süd-West-Ecke

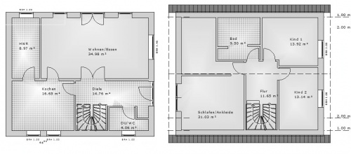
Zur Orientierung hier noch mal der Grundriss:

.

Schreibe einen Kommentar

Deine E-Mail-Adresse wird nicht veröffentlicht.