• Home
  • Über mich
    • Über mich
    • Features
    • 🖤 10.07.2017 🖤
  • Heim nach Räumen
    • Wohnzimmer/Esszimmer
    • Küche
    • Schlafzimmer
    • Ankleide
    • Bad
    • Gästebad
    • HWR
    • Dachboden
    • Garten/Außen
    • Flur
    • Zimmer 1
    • Zimmer 2
    • Wohnung – die Heime vorm Haus
  • „nacher“ Bilder
  • Bau
  • Tour Haus
    • Tour Haus
    • Grundriss
    • Farben usw.
heim-elich
so sieht es hier gerade aus

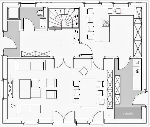
Grundrisse mit Möbeln

3. November 2013 Jenn

Mein letzter Beitrag hat mich inspiriert den Grundriss mal mit der aktuellen Möblierung zu versehen. Vielleicht hilft es ja dem einen oder anderen bei der Orientierung.

http://www.heim-elich.blogspot.de/p/uber.html
Kommentare deaktiviert

Beitragsnavigation

Möbelrücken
flachere Stecker
Social
Suche
Archiv
Kategorien
Features
hier seht ihr meine bisherigen Fremdauftritte
meine neusten Pins
Neueste Kommentare
  • stef bei Austausch Orrevik
  • Jenn bei Reparatur Sofa-Armlehne
  • Jenn bei Neue Farbe Klinker
  • Alex bei Austausch ikea Orrevik Abflussventil gegen Keuco Plan
  • Alexander bei Austausch Orrevik

© 2026 heim-elich. Alle Rechte vorbehalten
Theme von MOOZ Themes unterstützt durchWordPress
Cookie-Zustimmung verwalten
Wir verwenden Cookies, um unsere Website und unseren Service zu optimieren.
Funktional Immer aktiv
Die technische Speicherung oder der Zugang ist unbedingt erforderlich für den rechtmäßigen Zweck, die Nutzung eines bestimmten Dienstes zu ermöglichen, der vom Teilnehmer oder Nutzer ausdrücklich gewünscht wird, oder für den alleinigen Zweck, die Übertragung einer Nachricht über ein elektronisches Kommunikationsnetz durchzuführen.
Vorlieben
Die technische Speicherung oder der Zugriff ist für den rechtmäßigen Zweck der Speicherung von Präferenzen erforderlich, die nicht vom Abonnenten oder Benutzer angefordert wurden.
Statistiken
Die technische Speicherung oder der Zugriff, der ausschließlich zu statistischen Zwecken erfolgt. Die technische Speicherung oder der Zugriff, der ausschließlich zu anonymen statistischen Zwecken verwendet wird. Ohne eine Vorladung, die freiwillige Zustimmung deines Internetdienstanbieters oder zusätzliche Aufzeichnungen von Dritten können die zu diesem Zweck gespeicherten oder abgerufenen Informationen allein in der Regel nicht dazu verwendet werden, dich zu identifizieren.
Marketing
Die technische Speicherung oder der Zugriff ist erforderlich, um Nutzerprofile zu erstellen, um Werbung zu versenden oder um den Nutzer auf einer Website oder über mehrere Websites hinweg zu ähnlichen Marketingzwecken zu verfolgen.
Optionen verwalten Dienste verwalten Anbieter verwalten Lese mehr über diese Zwecke
Einstellungen anzeigen
{title} {title} {title}